Laopind, Tartu linn, Tartu maakond
Vitamiini, Veeriku
Hind: 937.2
6.0 €/m2
| tehing | Üürile anda |
| korrus | 1 |
| suurus | 156.2m2 |
| valmidus | Uus ehitis |
| ehitusaasta | 2025 |
| objekti ID | 122558 |
Varia
- Signalisatsioon
- Elekter
- Vesi
- Kinnine hoov
- Eraldi sissepääs
- Uus elektrijuhtmestik
- Aiaga ümbritsetud
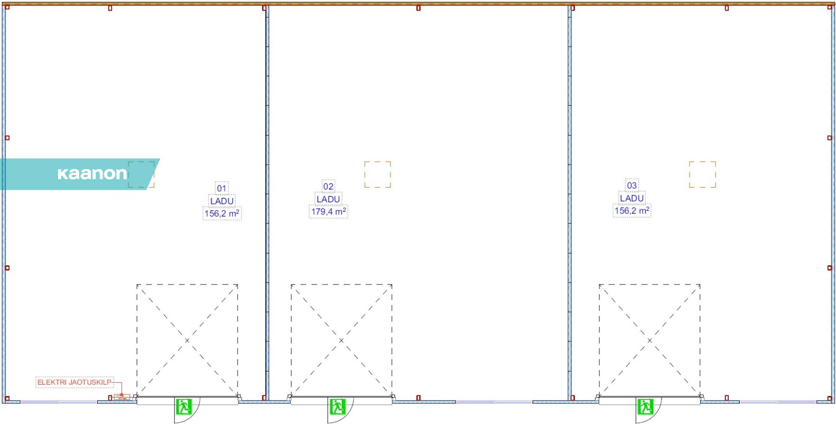
Üürile anda Vitamiini tn ärikvartalis alates 01.05.25.a. valmivas uues soojustatud viilhallis kolm eraldiseisvat pinda (pos1-156,2 m²; pos 2-179,4 m²; pos 3-156,2 m²).
Pindade kasutusotstarve on määramata, võib kasutada lao-, teenindus-, tootmis vm pinnana.
Igal eraldiseisval pinnal on vee, kanalisatsiooni valmidus ja õhksoojuspump . Samas saab ka üüripinnale ehitada/paigaldada kergkonstruksioon kontorit/soojakut.
Kõrvalolevas büroohoones on vajadusel võimalus eraldi üürida büroopinda (15 m²).
Juurdepääs tänavalt 24/7 on väga hea ka suurtele autodele.
Üürihind: 6 €/m² + kõrvalkulud + KM
Üürilepingu sõlmimisel tuleb tasuda esimese kuu üür ettemaksuna, deposiitmakse ühe kuu üürisumma ulatuses ning kinnisvarabüroo üürikorraldustasu, ühe kuu üürisumma ulatuses!
---
SUPERSOODUSTUSED PANKADELT
Ostes endale kodu Kaanoni vahendusel, pakuvad pangad meie maakleri poolt panka saadetud vihje alusel kodulaenu lepingutasudele mitmeid soodustusi. Uuri lähemalt meie maaklerilt.
Tegu on finantsteenustega. Tutvu tingimustega ja pea nõu asjatundjatega.
---
KAANON KINNISVARABÜROO
30-aastase kogemusega kinnisvarabüroo. Meie kogenud maaklerid aitavad sind kinnisvaraalastes küsimustes.
Meie hindajad koostavad hindamisi pankadele ja teistele krediidiasutustele, kohtutele, finantsaruandluseks, müügihinna määramiseks, varalisteks vaidlusteks ning konsulteerivad vara väärtusega seotud küsimustes.
Kui soovid kinnisvara müüa või hinnata siis võta palun ühendust meie meeskonnaga: www.kaanon.ee/kontakt
Pindade kasutusotstarve on määramata, võib kasutada lao-, teenindus-, tootmis vm pinnana.
Igal eraldiseisval pinnal on vee, kanalisatsiooni valmidus ja õhksoojuspump . Samas saab ka üüripinnale ehitada/paigaldada kergkonstruksioon kontorit/soojakut.
Kõrvalolevas büroohoones on vajadusel võimalus eraldi üürida büroopinda (15 m²).
Juurdepääs tänavalt 24/7 on väga hea ka suurtele autodele.
Üürihind: 6 €/m² + kõrvalkulud + KM
Üürilepingu sõlmimisel tuleb tasuda esimese kuu üür ettemaksuna, deposiitmakse ühe kuu üürisumma ulatuses ning kinnisvarabüroo üürikorraldustasu, ühe kuu üürisumma ulatuses!
---
SUPERSOODUSTUSED PANKADELT
Ostes endale kodu Kaanoni vahendusel, pakuvad pangad meie maakleri poolt panka saadetud vihje alusel kodulaenu lepingutasudele mitmeid soodustusi. Uuri lähemalt meie maaklerilt.
Tegu on finantsteenustega. Tutvu tingimustega ja pea nõu asjatundjatega.
---
KAANON KINNISVARABÜROO
30-aastase kogemusega kinnisvarabüroo. Meie kogenud maaklerid aitavad sind kinnisvaraalastes küsimustes.
Meie hindajad koostavad hindamisi pankadele ja teistele krediidiasutustele, kohtutele, finantsaruandluseks, müügihinna määramiseks, varalisteks vaidlusteks ning konsulteerivad vara väärtusega seotud küsimustes.
Kui soovid kinnisvara müüa või hinnata siis võta palun ühendust meie meeskonnaga: www.kaanon.ee/kontakt